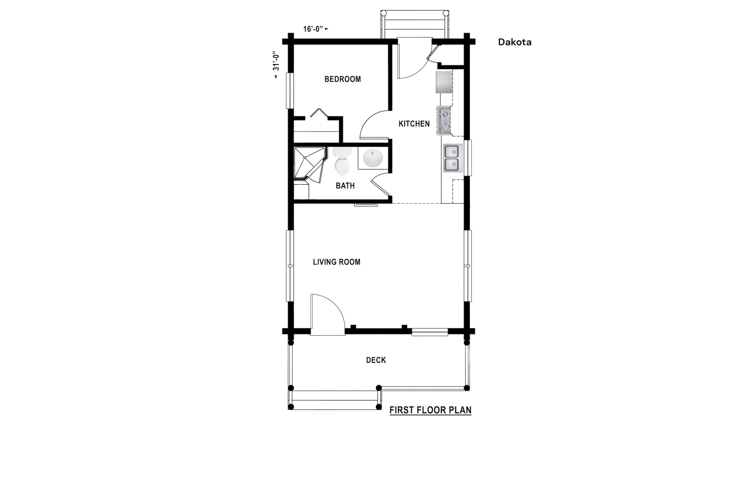
Dakota
Dakota
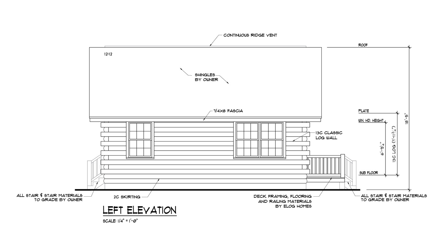
- Heated Sq. Ft.: 416
- Stories: 1.5
- Bedrooms: 1
- Bathrooms: 1
- Deck: 80 sq. ft.
- First Floor: 416 sq. ft.
EasyCabinTM ADU
Materials Package Price:
$45,000
* Interiors may be customized and not representative of eLoghomes' standard package designs.
