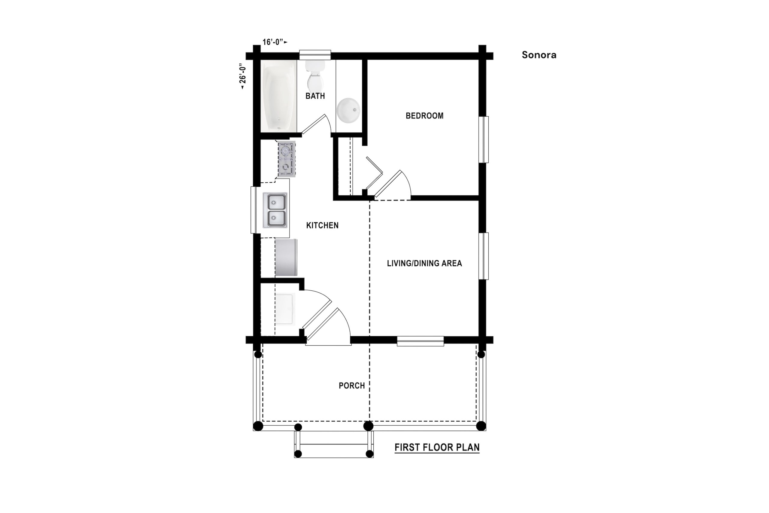
Sonora
Sonora
- Heated Sq. Ft.: 320
- Stories: 1
- Bedrooms: 1
- Bathrooms: 1
- Porch: 96 sq. ft.
- First Floor: 320 sq. ft.
EasyCabinTM ADU
Materials Package Price:
$35,000
* Interiors may be customized and not representative of eLoghomes' standard package designs.
