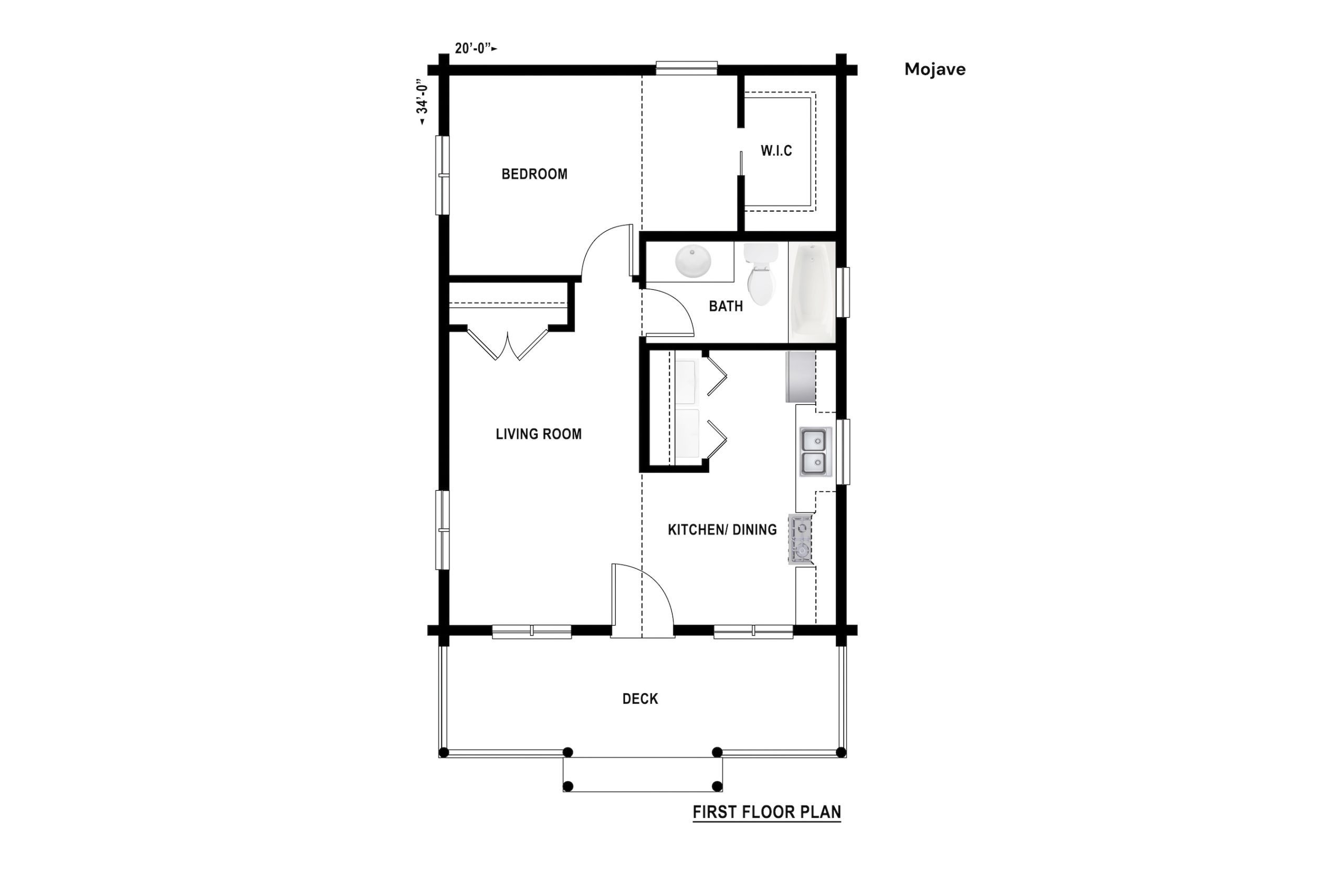
Mojave
Mojave
- Heated Sq. Ft.: 560
- Stories: 1
- Bedrooms: 1
- Bathrooms: 1
- Deck: 120 sq. ft.
- First Floor: 560 sq. ft.
EasyCabinTM ADU
Materials Package Price:
$50,000
* Interiors may be customized and not representative of eLoghomes' standard package designs.
